- НаличиеВ наличии
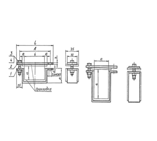
Подвески судовых трубопроводов Тип 9 предназначены для надёжного крепления и поддержания трасс трубопроводов на судах и кораблях. Они обеспечивают стабильность системы, компенсируют вибрации и тепловые расширения, что критически важно для безопасной эксплуатации судовых механизмов.
Изделия доступны в широком диапазоне масс (от 0,169 кг до 0,801 кг) и высот (от 63 мм до 590 мм), что позволяет точно подобрать элемент под конкретные проектные требования и параметры труб. Это обеспечивает универсальность применения и простоту монтажа.
Производятся из высококачественных марок стали, включая 09Г2С, 10Х17Н13М2Т, 12Х18Н10Т, 12ХМ, 15Х5М, АМг5 и сталь 3. Это гарантирует высокую коррозионную стойкость, прочность и долговечность даже в условиях агрессивной морской среды.
Оформите заказ онлайн для юридических лиц с безналичным расчётом. Получите коммерческое предложение и организуем доставку по Беларуси.
Нет отзывов об этом товаре.
Пока нет вопросов об этом товаре. Станьте первым!
